高知暮らしフェア2025夏 開催決定!!
林
ハッピーいの町ターン
-1024x520.jpg)
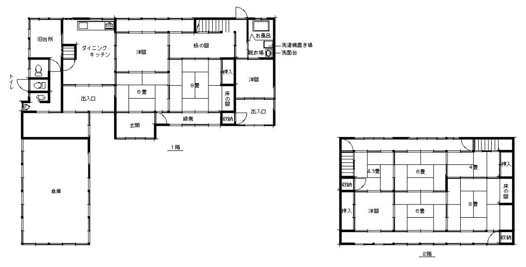
所在地:いの町神谷 【地図表示】おおよその位置が表示されます。
構造:木造2階建て
特徴:JR伊野駅より車で約10分。お家の近くを仁淀川が流れており、自宅から眺めることができます。お家は南向きで日当たり良好。また、徒歩約2分圏内に小中学校もあり、子育て世代におすすめです。
価格:(売却)400万円(売買にかかる所有権移転登記等の費用は購入者負担)